


动作电流
30~300mA范围可调,50~500mA范围可调
动作时间类型
快速型、延时型
快速型动作时间
≤0.1S
延时型动作时间
0.1S、0.2S、0.5S可选
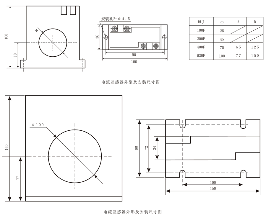
互感器孔径
25mm,45mm,100mm,150mm、200mm或方形非标
安装方式
35mm导轨安装、嵌入式面板、固定式


动作电流
30~300mA范围可调,50~500mA范围可调
动作时间类型
快速型、延时型
快速型动作时间
≤0.1S
延时型动作时间
0.1S、0.2S、0.5S可选
互感器孔径
25mm,45mm,100mm,150mm、200mm或方形非标
安装方式
35mm导轨安装、嵌入式面板、固定式



额定控制电源电压:
AC:220V;DC:24V
主要作用
用于各种控制电路的集中报警装置的安全用保护
动作时间
15ms以下
复位时间
8ms以下
绝缘电阻
100MΩ以上
最大开关频率
1800次/h(额定值负载)
辅助电源
AC/DC:110V、220V
启动方式
电压启动、电流启动可选
电流型启动电流
0.01~4A
电压型启动电压
DC:110V、220V
复归类型
正极复归、负极复归可选
安装方式
35mm导轨条安装、面板安装
触点形式
2组转换瞬动、2组转换延时
延时范围
0.02~99.99S,极差0.01S;0.02S~999H
额定电压
AC/DC:110V,220V
触点容量
长期允许接通电流为5A(常规)
功率消耗
不大于2.5W(4.5VA)
安装方式
35mm导轨条安装
联系电话
微信扫一扫
