星欧娱乐

上海聚仁电力

继电器制造商
电力继电器研发与生产的企业

咨询服务热线139-6888-3630
继电器选型
星欧娱乐> 技术文章>上面继电子产品>DZ-410型中央继电热器

联系星欧娱乐

  • DZ-416中间继电器
  • 文章类别:DZ-410型中间继电器
  • 文章概述
  •    
  • 产品分类

    询价留言

    DZ-416概述
    DZ-416中间电器用于各种保护和自动控制装置中,以增加保护和控制回路的接点数量和接点容量。继电器的磁系统为拍合式。不拆除外壳可以做手动测试。能在温热带使用。相关的型号有DZ-411、DZ-412、DZ-413、DZ-414、DZ-415、DZ-416、DZ-417、DZ-418等。
    技术参数
    ●额定电压:DC 110V、48V、24V、12V。
    ●动作电压:不大于额定电压的60%。
    ●返回电压:不小于额定电压的10%。
    ●动作时间和返回时间:不大于60ms。
    ●功率消耗:不大于5W。
    ●介质强度:产品各导电端子连在起,对外露的非带电金属部分或外壳之间,能承受2000V(有效值)50Hz的交流电历时1分钟试验而无绝缘击穿或闪络现象。
    ●触点长期允许接通电流:5A。
    ●触点断开容量:在电压不超过250V,电流不超过5A,时间常数为5±0.75ms的直流有感负荷电路中,触点的断开容量为50W。
    ●电寿命:5×103次。
    ●机械寿命:2.5×104次。
    DZ-416端子接线图
    DZ-416内部接线图
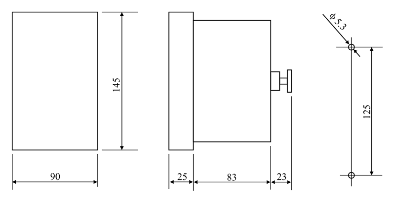
    DZ-416外形及开孔尺寸
    DZ-416外形及开孔尺寸图
    *主題:

    称谓:

    163邮箱:

    工厂:

    *的电话:

    座机:

    微信备注:

    *验证码:

    var _hmt = _hmt || []; (function() { var hm = document.createElement("script"); hm.src = "https://hm.baidu.com/hm.js?4cb0651a1350493021ec049b77b9cfbd"; var s = document.getElementsByTagName("script")[0]; s.parentNode.insertBefore(hm, s); })(); !function(p){"use strict";!function(t){var s=window,e=document,i=p,c="".concat("https:"===e.location.protocol?"https://":"http://","sdk.51.la/js-sdk-pro.min.js"),n=e.createElement("script"),r=e.getElementsByTagName("script")[0];n.type="text/javascript",n.setAttribute("charset","UTF-8"),n.async=!0,n.src=c,n.id="LA_COLLECT",i.d=n;var o=function(){s.LA.ids.push(i)};s.LA?s.LA.ids&&o():(s.LA=p,s.LA.ids=[],o()),r.parentNode.insertBefore(n,r)}()}({id:"K9y7iMpaU8NS42Fm",ck:"K9y7iMpaU8NS42Fm"});